Solothurner Spitäler AG - Praxis für Urologie und Vizeralchirurgie, Grenchen
Auftraggeber: Solothurner Spitäler AG
Realisierung: 2023
Auftragsart: Direktauftrag
Standort: im Ärztezentrum Grenchen, 3. OG
Innenarchitektur: Marcel Baechler, Innenarchitekt vsi.asai.
Mitarbeit: Noëlle Baechler, Martina Hofer
Bauleitung: Marcel Baechler, Innenarchitekt vsi.asai.
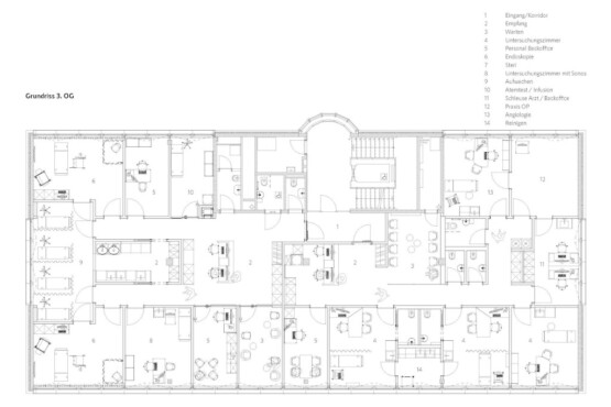
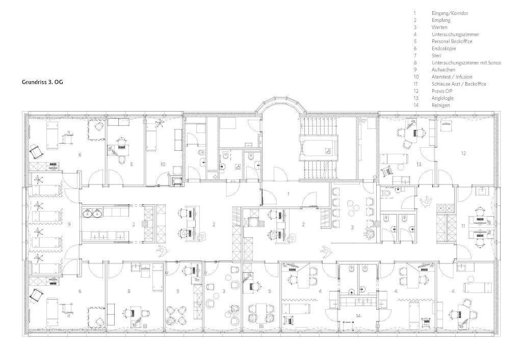
Wir erhielten den Auftrag im 3. Obergeschoss des neuen Ärztezentrum Grenchen für die Solothurner Spitäler AG eine Praxis für Urololgie und Vizeralchirugie zu planen.
In diesem Projekt waren wir für die gesamte Entwurfs-, Ausführungs-, Sanitär- und Elektroplanung mit Bauleitung verantwortlich.
Bei der Planung einer Praxis in der Urololgie und Vizeralchirugie ist es wichtig, eine angenehme und funktionale Umgebung zu schaffen. In den Wartebereichen im Zentrum der Praxis stehen bequeme Wilkhahn-Sessel, auf denen die Patienten Platz nehmen können. Es gibt auch Regal, auf denen Zeitschriften oder Bücher liegen, um die Wartezeit angenehm zu gestalten. Die Beleuchtung ist mit 4000K optimal gelöst um eine entspannte Stimmung zu erzeugen. Zwischen den Behandlungszimmern der Urologie wurden direkt zusätzliche kleine Toiletten eingebaut was für und Innenarchitekten eine zusätzliche Herausforderung für die Leitungsführung bedeutete. Mit hervorragenden Unternehmer vor Ort ist uns das unmögliche Gelungen.
An dieser Stelle einen grossen Dank an alle Unternehmer die uns Innenarchitekten immer in unseren Ideen unterstützt haben.
Visualisierung | Realitätsfoto (Schieber nach Links und Rechts bewegen)
