Frauenpraxis Lorze | Cham
Auftraggeberin: Frida Salihi, Fachärztin FMH Gynäkologie und Geburtshilfe, Cham
Realisierung: 2017
Auftragsart: Direktauftrag
Innenarchitektur: Marcel Baechler, Innenarchitekt vsi.asai.
Bauleitung: Marcel Baechler, Innenarchitekt vsi.asai.
Frau Frida Sahili, Fachärztin Gynäkologie und Geburtshilfe, erteilte uns den Auftrag für seine neue Gynäkologie Praxis in Cham zu realisieren. Sie suchte einen Praxisplaner mit Erfahrung im Praxisbau und weil sie mit Ihren engagierten Handwerker nicht mehr weiter kam, denn diese verlangten eine ordentliche Planung.
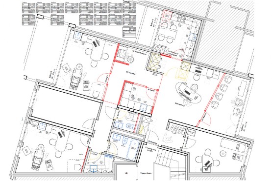
Als wir das Projekt übernahmen, erarbeiteten wir umgehend eine Gesamtplanung mit Elektro- und Sanitärplanung und gaben das Baugesuch ein. Anschliessend setzen wir uns mit der Gestaltung auseinander und kreierten den geschwungenen Empfang als Symbol für die schwangere Frau. Im Weiteren konnten wir Frau Sahili mit unserem Grundriss überzeugen, indem die Glastrennwand vom Empfang zum Warten schräg gestellt ist. Wir kreierten ein Moodboard und erste Visualisierungen, um damit unsere Gestaltungsideen zu präsentieren. Daneben führten wir mit dem Vermieter Verhandlungen für die Kostenübernahmen, die er zugesichert hatte.
Vor- | Nachher (Schieber nach Links und Rechts bewegen)


